
Array ( [cat_id] => 43 [cat_name] => 智能配电设备 [unique_id] => zhinengpeidianshebei [parent_id] => 0 [url] => http://www./product/zhinengpeidianshebei )
产品概述
ZBW-12系列箱式变电站,简称箱变,是一种把高压开关设备、配电变压器、低压开关设备、电能计量设备和无功补偿装置等按一定的接线方案,组合在一个或几个箱体内的紧凑型成套配电装置,它适用于额定电压10/0.4KV三相交流电力系统中,作为线路和分配电能之用,特别适用于城网建设与改造,是继土建变电站之后崛起的一种崭新的变电站。箱式变电站适用于矿山、工厂企业、油气田和风力发电站等场景,替代了原有的土建配电房或者配电站,成为新型的成套变配电装置。
性能特点
远程遥控:可实现"四遥",即遥测、遥信、遥控、遥调,每个单元均具有独立运行的功能,继电保护功能齐全,可对运行参数进行远方设置;
远程监测:全站可实现智能化运行,保护单元采用微机综合自动化系统,分散安装,可实现无人值守,安全性高;
防腐性能:箱体采用国内领先技术及工艺,冷轧钢板进行防腐处理,框架采用标准集装箱材料及制作工艺,有良好的防腐性能,不易锈蚀;
稳定可靠:内部安装空调以及除湿装置,设备运行不受自然气候环境及外界污染影响,可保证在-40℃~+40℃的恶劣环境下正常运行;
绝缘性能:采用单元真空开关柜、干式变压器、干式互感器、真空断路器等国内技术领先设备,产品无裸露带电部分,为绝缘结构,完全能达到零触电事故;
结构紧凑:较之土建配电室,箱变结构紧凑简单,占地面积小的同时,易于移动运输以及搬运安装,投资省、见效快,性价比高;
单元模块:独立系统设计理念,以功能单元的方式进行组合,方式灵活多变,真正实现变电所建设工厂化,缩短了设计制造周期;
施工安装:现场安装仅需箱体定位、箱体间电缆联络、出线电缆连接、保护定值校验、传动试验及其它需调试的工作,大大缩短了建设工期;
维护方便:结构设计便于维护和检修,减少维护时间和成本,易于访问的组件和模块化设计简化了更换和修理过程;
方案原理
设计依据
GB17467-2010《高压/低压预装式变电站》的标准
DL/T 537-2002 高压/低压预装箱式变电站选用导则
GB 1094.1~5-1996 电力变压器
GB 11022-1999 高压开关设备和控制设备标准的共用技术要求
技术参数
名称 |
单位 |
高压电器设备 |
变压器 |
低压电器设备 |
额定电压 |
KV |
12 |
12/0.4 |
0.4 |
额定电流 |
A |
630 |
|
|
变压器容量 |
kVA |
|
1250 |
|
额定频率 |
Hz |
50 |
||
额定热稳定电流 |
kA |
20/4S |
|
30/1S |
额定稳定电流(峰值) |
kA |
50 |
|
63 |
额定关合短路电流(峰值) |
kA |
50 |
|
15-30 |
额定开断短路电流 |
kA |
315(熔断器) |
|
|
额定开断负荷电流 |
A |
630 |
|
|
1min工频耐受电压 |
KV |
对地、相间42断口间48 |
35/28(min) |
20/25 |
蓄电冲击耐受电压 |
KV |
对地、相间75断口间85 |
75 |
|
壳体防护等级 |
|
IP23 |
IP23 |
IP23 |
噪音水平 |
dB |
|
油变≤55、干变≤65 |
|
回路数 |
个 |
1-6 |
2 |
4-30 |
低压侧最大无功补偿 |
kvar |
|
|
300 |
应用环境
本产品工作场所海拔不超过2000米,环境温度-25℃~+40℃,相对湿度:日平均不大于95%,月平均不大于90%。
本产品运行场所应具备无有害气体、可燃气体、蒸汽等污染,无导电性或者爆炸性尘埃,运行场所应无经常性的剧烈机械振动。
本产品避免长期在潮湿环境中放置,如受潮或者凝露,为避免短路,切忌第一时间通电试验,需在专业工程师指导下采取正确方法措施后进行故障排除。
上述为正常使用环境条件,如果实际使用环境不同于上述正常环境条件,由用户与制造厂协商解决。
型号含义
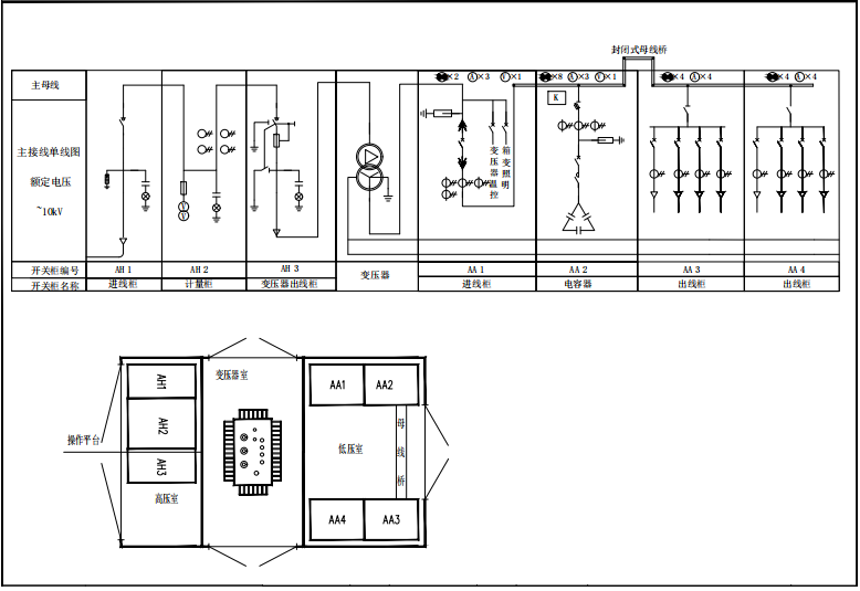
外观结构
选型参考
名称 |
箱变 |
围栏 |
800KVA |
4.6*2.3米 |
2*0.8米 |
630KVA |
4.6*2.3米 |
2*0.8米 |
500KVA |
4.4*2.3米 |
2*0.8米 |
400KVA |
4.4*2.3米 |
2*0.8米 |
315KVA |
3.8*1.8米 |
2*0.8米 |
250KVA |
3.8*1.8米 |
2*0.8米 |
200KVA |
3.8*1.8米 |
2*0.8米 |
订货须知
电力系统图;
辅助电路电气原理图;
组合顺序图;
平面布置图;
计量单元;
外壳材质;
外观颜色;
使用环境(户外)
落地安装;
负载性质;
特殊要求注明;