
Array ( [cat_id] => 43 [cat_name] => 智能配电设备 [unique_id] => zhinengpeidianshebei [parent_id] => 0 [url] => http://www./product/zhinengpeidianshebei )
产品概述
BPF系列高压变频旁路柜,主要应用于10KV电力系统中,与高压变频柜配套,是一种用于高压变频器故障或检修时,能够保证高压电动机可以正常工作的旁路供电设备,主要由高压隔离开关、高压真空断路器、高压真空接触器、带电显示器、操作单元、连锁机构、外壳以及导体等核心部分组成,高压变频旁路柜的切换方式主要有手动旁路和自动旁路两种。手动旁路方式通过高压隔离开关实现,而自动旁路方式则通过真空接触器或真空断路器来实现,这取决于负载的类型和允许的断电时间。在实际应用中,高压变频旁路柜不仅用于异常保护和检修时的安全隔离,还能通过工频与变频的切换实现变频器的工作状态,确保电机的连续运转,从而提高设备运行的可靠性和稳定性。主要应用于发电厂、水厂、工矿企事业等诸多领域。
性能特点
结构设计:允许根据具体需求灵活配置和扩展,结构紧凑,节省空间,便于安装在有限的空间内集成不同的功能单元;
快速切换:能够在变频器故障时迅速切换到旁路模式,最小化生产中断时间,自动旁路柜可以实现自动切换,保证电机正常运行;
高可靠性:设计用于承受频繁的切换操作,保证在各种工况下稳定运行,适用于各种环境条件,包括不同的温度、湿度和海拔高度。
保护功能:配备过载、短路、过压、欠压等多种保护,提供清晰的隔离点和隔离指示,确保维护人员系统的安全。
智能控制:集成智能控制单元,实现自动切换和故障诊断,提高系统的智能化水平,能够适应不同负载特性和工作条件,保证电动机的稳定运行。
易于维护:考虑维护便利,降低维护成本,该性能特点使其成为现代工业自动化不可或缺的组成部分,特别是在那些对连续生产和设备稳定性要求极高的场合。
高兼容性:设计考虑电磁兼容性,减少对其他设备的干扰,能够与多种品牌和型号的高压变频器配合工作。
操作界面:提供清晰的操作界面,便于操作人员监控和控制,可能具备与中央控制系统或自动化网络通信的能力。
方案原理
设计依据
GB3906-9《13~35kV交流金属封闭开关设备》
GB1984-89 《交流高压断路器》
GB11022-89 《高压开关设备通用技术条件》
GB311.1-97 《高压输变电设备的绝缘配合》
GB763-90 《交流高压电器在长期工作时的发热》;
GB2706-89 《交流高压电器动、热稳定试验方法》;
GB3309-89 《高压开关设备在常温下的机械试验》;
GB4208-93 《外壳防护等级的分类》
技术参数
配用真空接触器JCZ/CBX/VSC等型 |
|
额定电压 |
7.2/12kV |
1min工频耐受电压 |
30/42kV |
额定冲击耐受电压(峰值) |
60/75kV |
额定频率 |
50/60Hz |
额定电流 |
400A |
分支母线额定电流 |
400A |
额定短路开断电流 |
4KA |
过载能力 |
120%一分钟,150%立即保护 |
模拟量输入 |
0~10V/4~20mA,任意设定 |
模拟量输出 |
两路0~10V/4~20mA可选 |
控制开关量输入输出 |
可按用户要求扩展 |
防护等级 |
外壳为IP4X |
应用环境
本产品工作场所海拔不超过2000米,环境温度-25℃~+40℃,相对湿度:日平均不大于95%,月平均不大于90%。
本产品运行场所应具备无有害气体、可燃气体、蒸汽等污染,无导电性或者爆炸性尘埃,运行场所应无经常性的剧烈机械振动。
本产品户内使用运行,如果在特殊情况下户外使用,需加装保护外壳,并参考相关标准保证箱体外壳的防护等级。
本产品避免长期在潮湿环境中放置,如受潮或者凝露,为避免短路,切忌第一时间通电试验,需在专业工程师指导下采取正确方法措施后进行故障排除。
上述为正常使用环境条件,如果实际使用环境不同于上述正常环境条件,由用户与制造厂协商解决。
型号含义
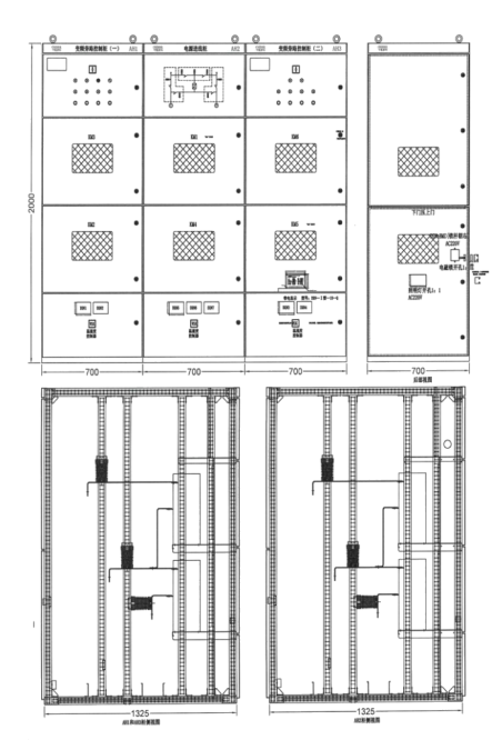
外观结构
标准选型
订货须知
变频柜电力系统图;
变频柜辅助电路电气原理图;
控制方式(手动控制/自动控制)
组合顺序图;
平面布置图;
外壳材质(镀镁铝锌板)
颜色(标准RAL7035)
使用环境(户内)
落地并序安装;
负载性质;
特殊要求注明;